Estudio de arquitectura de la ciudad de Buenos Aires, Argentina. Diseño, Proyecto y Direccion de Obra. Servicios de Desarrollo de Documentacion de Obra; Modelado, Renderizado y Animación de Proyectos a Estudios de Arquitectura de la Argentina y el mundo. arquitectura buenos aires argentina estudio de arquitectura arquitecto buenos aires diseño construccion proyecto y direccion de obra estudiocol estudio col arquitecto carlos olmos carlos maria olmos colmos99 colmos carlos m olmos arq

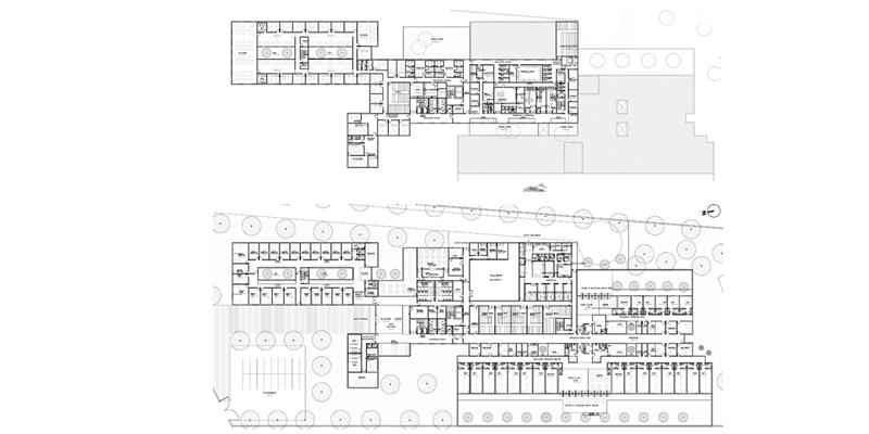
| CENTROS DE SALUD  MENTAL  | se proyectaron 12 centros de salud mental para el Gobierno de la ciudad de buenos aires, distribuidos por distintos barrios de la ciudad con el objetivo de descentralizar la atención al público, proyectándose un centro de
 evaluación  y derivación y diversos centros de
 internación  y hospitales de día. se desarrolló el proyecto licitatorio de los doce centros de salud mental indicados.  | 
| 
 _EQUIPO DE PROYECTO _COLABORADORES _ESTADO ACTUAL |  | 
| 
 | |
EstudioCOL - Todos los derechos reservados ® - 2019